当前位置:深圳新闻网首页 > 深圳新闻 > 图片深圳 > 

龙岗这两个片区有大变化!学校、公租房、社康中心等将上线

2019-10-21 08:20来源:深圳新闻网

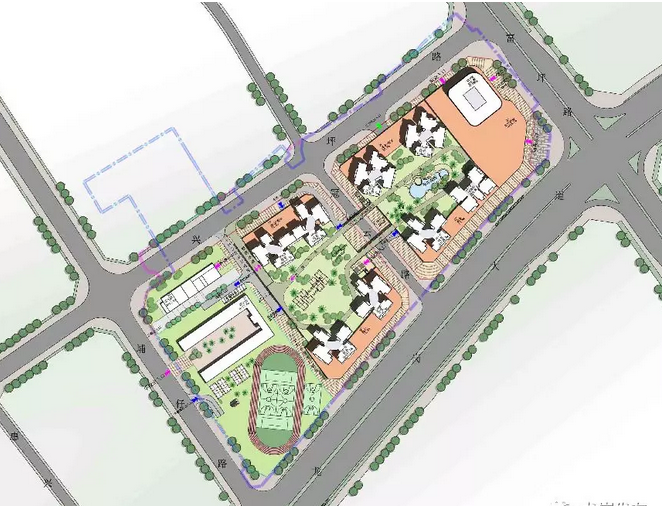
规划技术经济指标

更新单元用地面积为70588.8平方米,拆除范围用地面积69607.9平方米,开发建设用地面积为37861.1平方米,规划容积率7.6,规划容积289240平方米;

其中住宅210360平方米(含公共租赁住房26537平方米),商业、办公及旅馆业建筑67000平方米(含母婴室130平方米),公共配套设施11880平方米(含9班幼儿园2400平方米、占地2950平方米,公交首末站2500平方米,社区健康服务中心1000平方米,社区老年人日间照料中心750平方米,文化活动室1000平方米,社区管理用房300平方米,社区警务室50平方米,便民服务站400平方米,邮政所100平方米,小型垃圾转运站150平方米,再生资源回收站60平方米,公共厕所60平方米,环卫工人作息房10平方米,公共充电站700平方米,党群服务中心650平方米,社区级公共配套用房1750平方米),另配建社区体育活动场地占地面积3000平方米,移交27班九年一贯制学校用地面积13056平方米。

不过需要注意的是,两则公示的更新单元规划仅为草案,最终成果以政府批件为准。

来源|综合龙岗发布微信公号

[见圳客户端、深圳新闻网编辑:施冰冰]

新闻评论